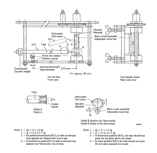
Cold Bend Test ApparatusProduct details: Model ZLT-SDJ1.To determine the bending stability at low temperature of insulated cords and cables up to 12, 5mm diameter in cold test chambers or freezers with mandrels to 50mm diameter, according to IEC60811-1-4 clause 8.1 figure 1.Standard outfit:1 rigid h......

PV Module Flame Test Equipment, UL 1703 , UL 790, IEC 61730
UL 1703 -2004 Falling Ball Impact Tester for PV Module
Solar Panels Testing Hail Impact Testing Machine IEC61646 IEC61215 Standard
Salt Spray Flowing Mixed Gas Corrosion Testing Machine
UL 1703 -2004 Standard Drop Ball Testing Machine
UL 1703 -2004 PV Module Durable Hot Spot Testing Machine