Impact Test Apparatus at Low TemperatureProduct details: Model ZLT-DCJ1:
To determine the mechanical strength of insulated cords, cables, couplers, plug pin insulating sleeves and enclosures in the cold, according to IEC60884-1 figure 27 and 42, IEC60811-1-4 figure 2, VDE0620 figure 28 and 41.
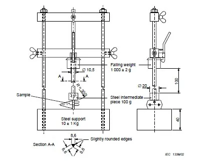
Standard outfit:
1 steel block, height 40mm, width approx 200mm, mass 10kg,
2 columns, inclusive of upper crossbeam with fixing screw,
1 guide rod, three-edged, with slightly rounded edges, for heights of fall up to 100mm with maximum height of sample 40mm,
1 intermediate piece of steel, mass 100g, diameter 20mm, bottom side rounded R=300mm.
1 the mass of the falling weight is (1 000 ± 2) g, impact height: 10~250mm.
2 intermediate piece, of steel, mass 100 g, with striking bolt of diameter 20 mm and 6 mm, for impact tests according to IEC60884-1 Fig 27 and Fig 42.
